昭和の家が、今の暮らしにちょうどいい家へ。
倉敷市庄新町にある昭和50年1月築、土地面積174.38㎡(52.74坪)、延べ床面積84.59㎡の住まいを、現代の暮らしに合わせて全面リフォームします。
落ち着いた住宅地に佇むこの家は、建物の良さを活かしながら、使い勝手と快適性を大きく向上させた“新しい暮らしの形”をご提案します。
≪ BIFORE ≫

≪ AFTER ≫


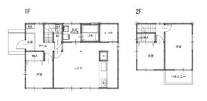
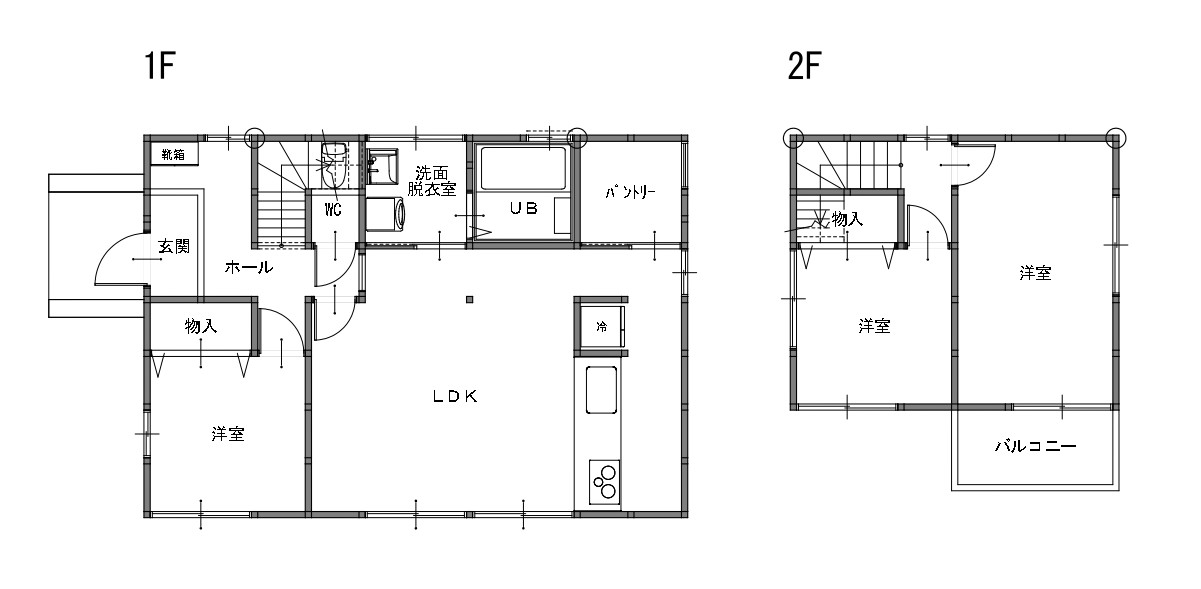
1階は分かれていた部屋をつなげて広々LDKに。全室洋室化と収納計画の見直しで、毎日の暮らしがもっと快適になる住まいの魅力を高めるリフォームを進めてまいります。
” 暮らしやすさ ” を整えるリフォームが始まります
現在、リフォーム工事に向けて準備を進めております。掲載中の写真はリフォーム前の状態です。工事の進捗や完成後の写真も随時更新いたします。
【 外観 】

【 1F ダイニングキッチン、洋室 】

【 2F 洋室、和室 】


